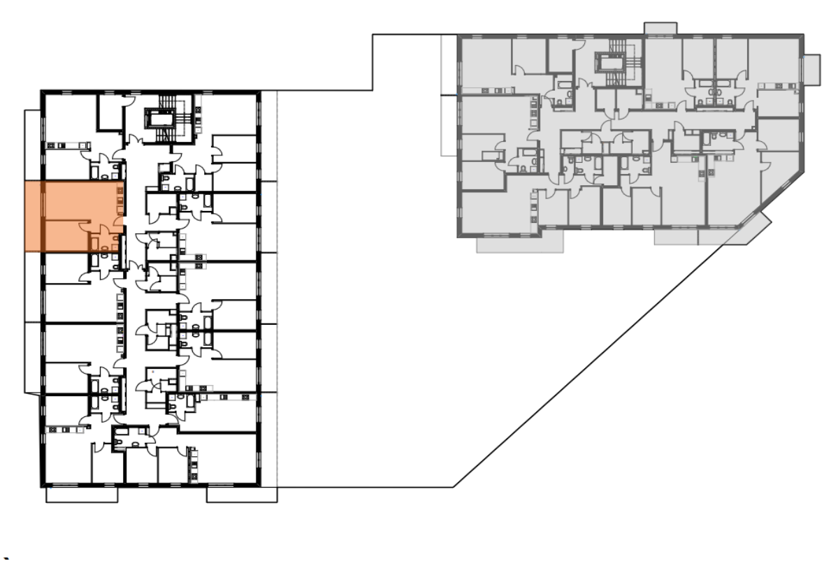
Budynek nr 6B, Mieszkanie nr 34.5.2

Wolne
Twój koszyk (0)

Zestawienie pomieszczeń:

  • Salon z aneksem 24,84m2
  • Pokój 12,02m2
  • Łazienka 4,37m2
  • Komunikacja 5,30m2
  • SYMBOL Mieszkanie nr 34.5.2
  • POWIERZCHNIA 46,53
  • PIĘTRO 4
  • Rodzaj dwupokojowe
  • BALKON 10,42
  • WINDA Tak
  • CENA 413 651,70PLN
  • CENA ZA M² 8 890,00PLN
  • WAŻNOŚĆ CENY OD 2025-09-10 r.
  • HISTORIA CEN:
  • 2025-09-10 r. 413 651,70 PLN

Kontakt

Planujesz wizytę? Umów dogodny termin telefonicznie lub drogą elektroniczną.