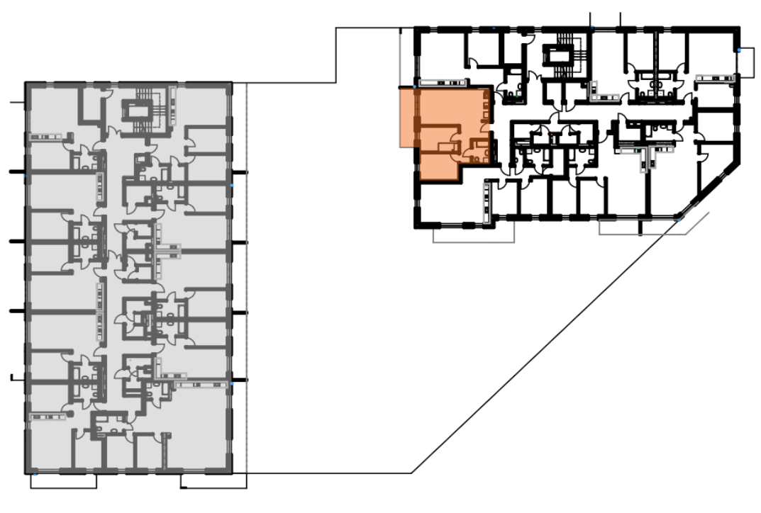
Budynek nr 7B, Mieszkanie nr 23.5.2

Wolne
Twój koszyk (0)

Zestawienie pomieszczeń:

  • Salon z aneksem 23,89m2
  • Pokój 9,88m2
  • Pokój 10,65m2
  • Łazienka 4,06m2
  • Komunikacja 7,97m2
  • SYMBOL Mieszkanie nr 23.5.2
  • POWIERZCHNIA 56,45
  • PIĘTRO 4
  • Rodzaj trzypokojowe
  • BALKON 9,0
  • WINDA Tak
  • CENA 496 195,50PLN
  • CENA ZA M² 8 790,00PLN
  • WAŻNOŚĆ CENY OD 2026-02-27 r.
  • HISTORIA CEN:
  • 2026-02-27 r. 496 195,50 PLN
  • 2025-09-10 r. 507 485,50 PLN

Kontakt

Planujesz wizytę? Umów dogodny termin telefonicznie lub drogą elektroniczną.