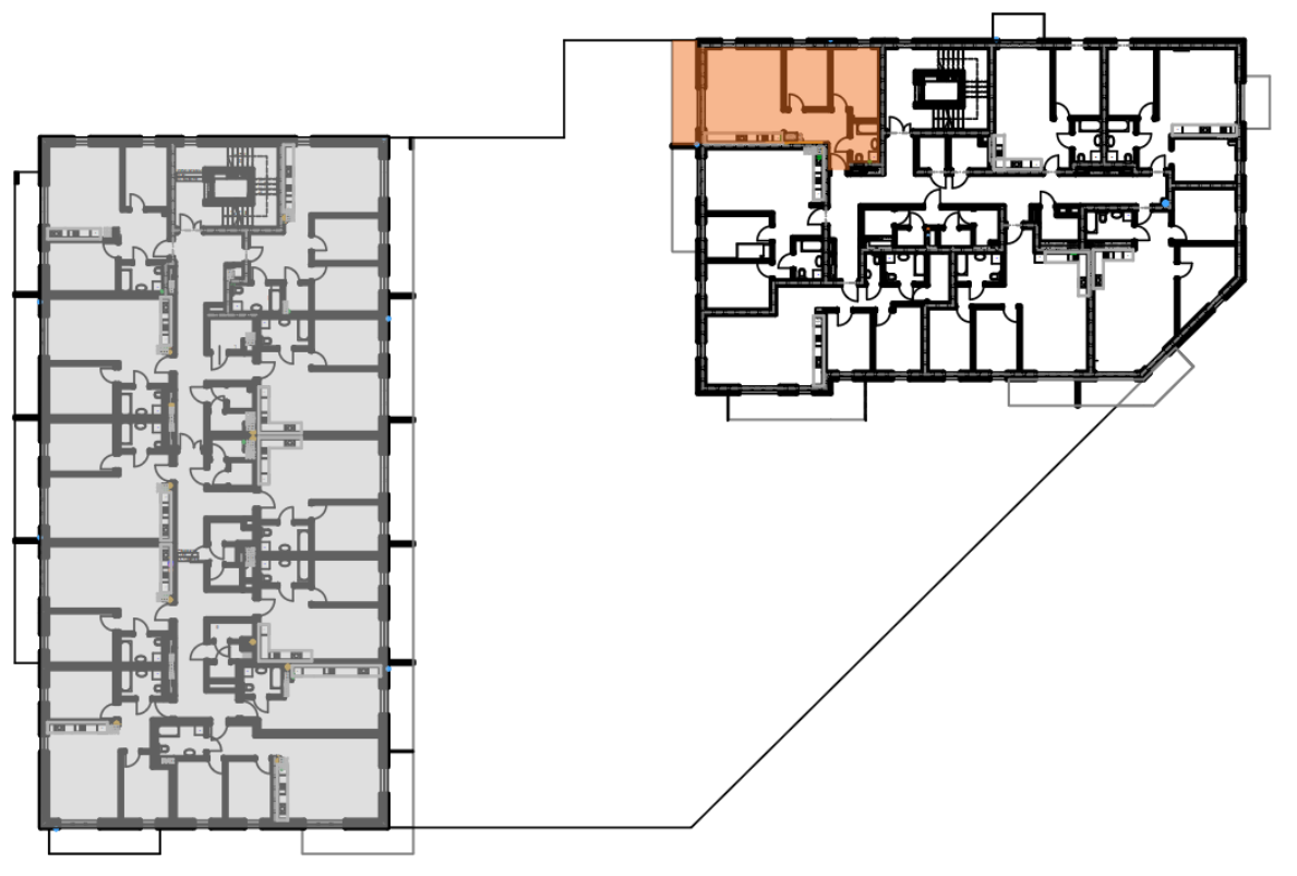
Budynek nr 7B, Mieszkanie nr 8.3.1

Wolne
Twój koszyk (0)

Zestawienie pomieszczeń:

  • Salon z aneksem 24,94m2
  • Pokój 9,03m2
  • Pokój 10,71m2
  • Łazienka 3,90m2
  • Komunikacja 8,17m2
  • SYMBOL Mieszkanie nr 8.3.1
  • POWIERZCHNIA 56,75
  • PIĘTRO 2
  • Rodzaj trzypokojowe
  • BALKON 9,00
  • WINDA Tak
  • CENA 489 866,00PLN
  • CENA ZA M² 8 632,00PLN
  • WAŻNOŚĆ CENY OD 2026-02-27 r.
  • HISTORIA CEN:
  • 2026-02-27 r. 489 866,00 PLN
  • 2025-09-10 r. 498 832,50 PLN

Kontakt

Planujesz wizytę? Umów dogodny termin telefonicznie lub drogą elektroniczną.